联排设计方案Ⅰ
一:项目位置:北京市通州区
二:小区名称:千章墅
三、户型:联排
套内面积:450㎡
四、工程项目:新风系统、空调系统、地暖、水处理系统等
五、设计说明
1.设计依据:
业主提供的建筑平面图
《室内空气质量标准》
《室内通风设计国家规范》
美国ASHRAE62-1989/1999
2.设计范围:
微正压空气置换系统、平衡压空气置换系统、空调系统、水处理系统、地暖等
3.设计原理:
根据客户需求、项目户型、设计标准以及产品运行原理来进行设计。
六、设计概述
本方案地点在北京市通州区。根据户主要求,设计师结合北京市环境、气候特点,对室内空气置换系统的设备选择、管路铺设等进行设计;根据室内房间面积大小的不同进行空调系统的设备配置;同时在厨房安装进口水处理设备,解决水质问题。
室内采暖系统采用地面低温辐射采暖。通过地板辐射层中的热媒,均匀加热整个地面,利用地面自身的蓄热和热量向上辐射的规律由下至上进行传导,来达到取暖的目的。在室内形成脚底至头部逐渐递减的温度梯度,从而给人以脚暖头凉的舒适感。
系统配置:

本方案中,室内需送新风的总面积为437㎡。新风的送风方式均采用顶送风,多点送风集中回风,让每个房间形成微正压,防止室外空气从门窗缝隙进入室内,造成二次污染。
地下一、二层新风布置方案:
地下一层的送风面积为166㎡, 层高2.8米,所需风量608m3。配备一台
布朗BE3.0型设备和两台BHS2.0(PM2.5过滤段)设备,设备总风量为608m3/H,室内净化次数为1.3次/小时。
布朗BE系列设备全新风引入, 及时排除室内多余的湿气,霉菌,异味等,可保持室内空气始终新鲜、舒适。
全热交换器的热交换率高达83%,采用纯物理过滤方式,过滤级别达H13级别,安全可靠 ;设备智能能源管理系统,可检测室内外温差,当温差过大时,设备可自动调节进风量,从而使室内温度始终保持在舒适范围内。BE设备配置防霜冻功能,避免冬季极度湿寒天气设备冻坏等情况。
为了达到更好的净化效果,还配备一台BHS 2.0(PM2.5)过滤段,以达到新风+净化的效果。
设计图纸:

(地下一层新风设计图纸)

(地下二层新风设计图纸)
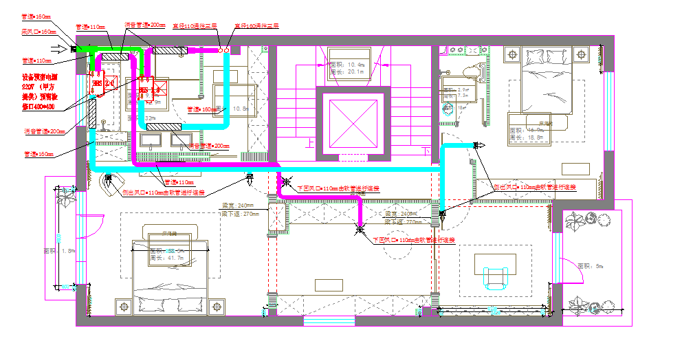
一层新风布置方案:
一层所需送风面积102㎡,层高2.8米,所需风量285.6m3。配备一台BHS2.0设备,设备总风量为425m3/H,室内净化次数为1.48次/小时。
BHS系列拥有三重过滤,对PM2.5的过滤效果达到95%以上。更有高达H13级的HEPA高效过滤网。BHS系列拥有超长的使用寿命。
BHS系列在保证足够的新风量的同时,还对室内形成二次循环净化,让室内空气更加洁净。
设计图纸:
二层新风布置方案:
二层所需送风面积98㎡,层高2.8米,所需风量274.4m3。配备一台BHS2.0设备,设备总风量为425m3/H,室内净化次数为1.54次/小时。
设计图纸:
三层新风布置方案:
三层所需送风面积71㎡,层高2.8米,所需风量198.8m3。配置一台BHS1.0设备,安装在二层。设备总风量为253m3/H,室内净化次数为1.27次/小时。
设计图纸:
空调系统布置方案:
空调在原有空调设备基础上,修改管路与设备位置,是空调送风方式更为合理,
从“温度、湿度、洁净度、气流”多维度打造舒适空气环境。
设计图纸:

(地下二层空调设计图纸)

(地下一层空调设计图纸)

(一层空调设计图纸)

(二层空调设计图纸)

(三层空调设计图纸)
水处理系统布置方案:
本方案中,水处理系统配置美国
康尼蒂克品牌的前置过滤器、中央净水机、中央软水、KS净水机、水质检测等。
前置过滤器是二次污染的克星,是一种可靠的杂质过滤装置,把好净水第一关;康尼蒂克净水系统采用独有的非电力驱动控制阀,为用户提供永不间断的洁净水。可使用各种过滤介质如:除氯的活性炭,起中和作用的方解石,去除微粒杂质和铁离子的 Macrolite 滤料。根据所使用的滤料的不同,它能使产水量从每分钟几公升增加至几百公升。
康尼蒂克软水机设计先进,操作设置灵活。这使得系统既可以在“过载”配置下实现流量最大化,也可以在“交替”配置下实现效率最大化。当设置好流量配置和计量表盘后,系统就能全程自动运行,为您提供永不间断的软化水。
地暖系统布置方案:
设计说明:
一、设计依据
1.现行设计规范和设计标准
《地源热泵系统工程技术规范》(GB50366-2005)
《地面辐射供暖技术规程》(JGJ142-2004 J365-2004)
北京市地标《地面辐射供暖技术规范》(DB11/806-2011)
《采暖通风与空气调节设计规范》(GB50019-2003)
《严寒和寒冷地区居住建筑节能设计标准》(JGJ-2010)
《居住建筑节能设计标准》(DBJ 11-602-2006)
《建筑节能工程施工质量验收规程》(GB 50411-2007)
《通风与空调工程施工质量验收规范》 (GB50243-2002)
《全国民用工程设计建筑技术措施-暖通动力》(建设部)
二、设计范围
1.本设计方案包括:地暖系统;
2.本建筑空调系统及通风系统由业主自行采购。
三、设计参数及设计标准
1.室外设计参数:
夏季空调计算干球温度33.2°C 夏季空调计算湿球温度 26.4°C
夏季通风计算温度 30°C 夏季室外平均风速 1.9m/s
冬季空调计算干球温度 -12°C 冬季空调计算相对湿度 45%
冬季通风计算温度 -5°C 冬季采暖计算温度C
冬季室外平均风速 2.8m/s 冬季最多风向NNW 和 N
2.室内设计参数:
干球温度及相对湿度
区域/房间
冬季(±2℃/5%)
夏季(±2℃/5%)
展厅
20/40
26/60
大堂
20/40
26/60
公共建筑
20/40
26/60
四、热源及采暖系统
本设计中,制热面积432m
2。热源为燃气壁挂炉供暖,二次换热后供水温度为55℃,回水温度为45℃。各层房间冬季多采用采用低温热水地板辐射采暖系统,本方案设计为整层、分室控制。
设备部分选用德国欧文托普分集水器,西门子的温控器和执行器等;管材部分选用进口的德国源宝品牌,德国源宝采用乙烯醇共聚树脂涂层,隔氧性高;内表面光滑,阻力小,耐高温耐低温,热稳定性好,流动噪音小。
五:设计图纸

(地下二层地暖设计图纸)

(地下一层地暖设计图纸)

(一层地暖设计图纸)

(二层地暖设计图纸)

(三层地暖设计图纸)
了解方案更多详情,欢迎您致电客服热线:400-678-1819;或添加QQ:3063026399,期待您的咨询。