Goodman全空气系统 X 长岛澜桥

一:项目位置:北京市顺义区
二:小区名称:长岛澜桥
三、Goodman全空气覆盖面积:377.4㎡
四、工程项目: GOODMAN全空气中央空调系统
五、设计说明
1.设计依据:
业主提供的建筑平面图
《室内空气质量标准》
《室内通风设计国家规范》
美国ASHRAE62-1989/1999
2.设计范围:
全空气中央空调系统
3.设计原理:
根据客户需求、项目户型、设计标准以及产品运行原理来进行设计。
六、设计概述
本方案户型为联排别墅,地点在北京市顺义区。
根据户主要求,设计师结合北京市环境、气候特点,对别墅全空气中央空调系统
的设备选择、管路铺设等进行设计,确保全屋保持常年恒温、恒湿、恒氧、恒静、恒洁的室内环境。
本方案,选用两套5冷吨Goodman全空气中央空调热泵机组,室内机组辐射面积共377.4㎡。
Goodman全空气中央空调热泵机组可安装在地面或屋顶,按美国制冷协会工业标准AHRI Standard 210/240-2008制造,通过第三方美国电子测试实验室ETL的性能测试。
热泵机组(室外机)产品特性:
R-410A高效环保制冷剂
Copeland高效涡旋压缩机
SmartShift技术,静音运转,可靠除霜
双层铜管、铝波纹翅片盘管
全封闭、永久润滑的冷凝器电机
双流向液管干燥器
吸气管侧配有储液罐
压缩机曲轴箱加热器
高功率消音器
高低压开关
铜管焊接简易检修端口
热泵机组(室内机)产品特性:
R-410A高效环保制冷剂
直驱多速风扇电机
SmartFrame™内骨架,增加底盘横稳性,提供元件安装定位
SmartFrame™技术避免高湿度时冷凝水的渗透
结构紧凑、可变4向安装设计、布置灵活
提供垂直和水平安装冷凝接水盘及排水接口
AHRI认证内螺纹铝管和装有百叶窗板的铝翅片线圈
全隔热箱体
预留免工具1寸净化过滤器通道
预留单管紫外线杀菌灯安装位置
预留辅助电加热安装位置
系统配置:
本项目全空气中央空调系统布置方案:
本项目Goodman系统覆盖总面积约为377.4㎡,该系统一步到位地处理家居环境中一切与人体舒适感相悖、对人体健康有害的各种空气问题,可让家里全部空间(如大厅、卧室等,甚至于厨房、卫生间、衣帽间、过道、楼梯等)都处于优质空气环境状态。
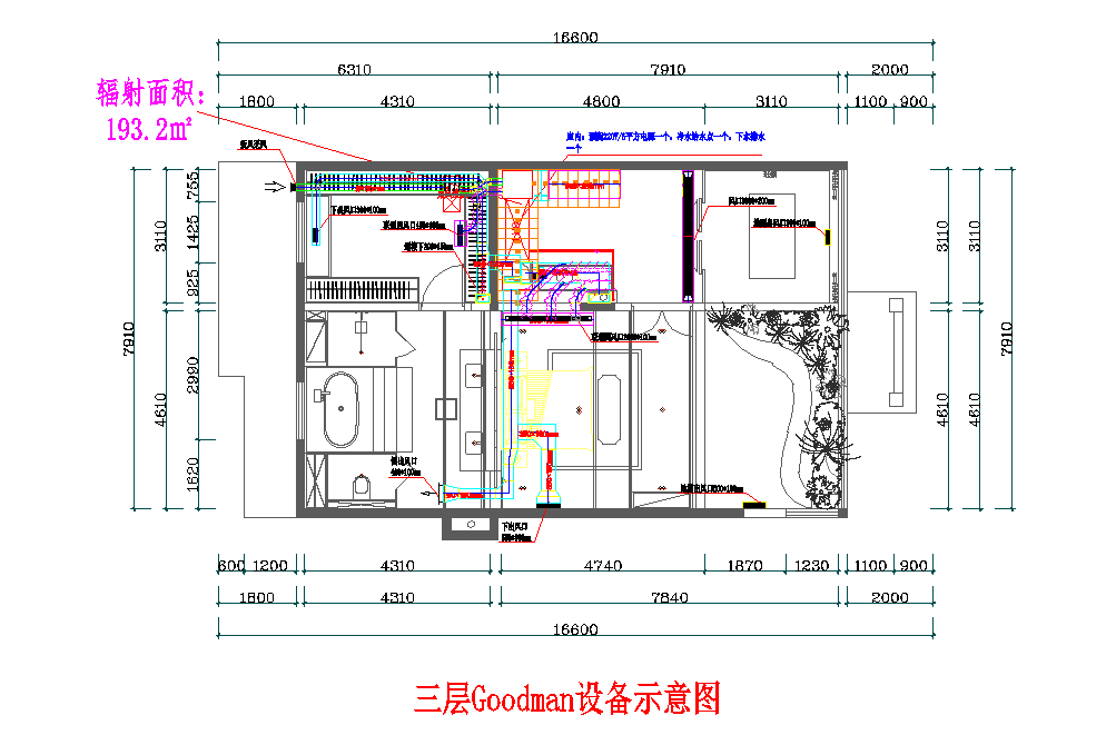
本项目共配置两套Goodman 全空气中央空调系统。设备的两台外机在室外上下放置,做设备基础架,下面一台设备上放做导流罩;室内机一台安装在一层,另一台安装在三层。
放置在一层的设备送风区域为地下一层、一层,送风面积为184.2㎡;放置在三层的设备送风区域为三层、二层,送风面积为193.2㎡。
本套方案采用:两台5 冷吨Goodman外机,两台5 冷吨Goodman内机;两个紫外线杀菌器;两台回风静压箱(包含超微净化器);两台超微电子净化器;两台加湿器;两台采风过滤器及两台智能控制系统。
设计图纸:
施工照片:




